Nueva Andalucía

Te koop Penthouse Duplex Costa Del Sol Nueva Andalucía € 525.000,-

Ref.no: RSOR5357047
Price: € 525.000,-

1-7980e48d732b6fc85c14b43b94d2aa54.jpg

Te koop Penthouse Duplex Costa Del Sol Nueva Andalucía € 525.000,-

Bedrooms3
Salles de bains2
Living area134m²
Poolyes
Gardenyes
Parkingno
Built year2005
Réglage : Proche du golf, Proche du port, Proche des magasins, Proche de la mer, Proche de la ville, Proche des écoles
Orientatie: Zuid
Staat: goed
Zwembad: gemeenschappelijk
Klimaatregeling: airconditioning, open haard
Uitzicht: Bergen, Panoramisch, Tuin, Zwembad, Stedelijk, Straat
Caractéristiques : Terrasse couverte, Armoires encastrées, Proche des transports, Terrasse privée, Débarras, Salle de bains attenante, Sol en marbre, Double vitrage, Fibre optique
Meubels: optioneel
Tuin: Gemeenschappelijk
Beveiliging: Gated Complex
Hulpprogramma's: elektriciteit, drinkwater
Ref.no: RSOR5357047
Price: € 525.000,-

Plus d'information ›››
Te koop Penthouse Duplex Costa Del Sol Nueva Andalucía € 525.000,-

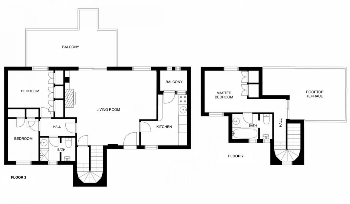
Situé dans le quartier très prisé de Los Naranjos de Marbella, ce charmant penthouse en duplex offre un style de vie exceptionnel à quelques pas des commodités, de la plage et du célèbre Puerto Banús.

La propriété comprend 3 chambres et 2 salles de bains, judicieusement réparties sur deux niveaux.

Au rez-de-chaussée, un salon lumineux et spacieux avec cheminée s'ouvre sur une terrasse ensoleillée exposée plein sud. Cet espace extérieur est idéal pour les repas en plein air : il peut accueillir une table, un barbecue et offre une vue dégagée ainsi qu'un ensoleillement généreux tout au long de la journée. La cuisine entièrement équipée est complétée par une buanderie attenante. Ce niveau comprend également deux chambres, une salle de bains et un espace de rangement pratique.

À l'étage, la suite parentale offre intimité et accès direct à une seconde terrasse, un endroit idéal pour bronzer, se détendre ou profiter de moments de calme en plein air.

La propriété est située dans une résidence sécurisée avec de magnifiques jardins arborés et une piscine commune.

Située dans un quartier résidentiel très prisé, la résidence offre à ses habitants la proximité d'un centre commercial comprenant un supermarché, un studio de yoga et une sélection de restaurants, ainsi que plusieurs terrains de golf renommés.

De plus, l'appartement possède une licence touristique, ce qui en fait une excellente opportunité d'investissement avec un potentiel locatif immédiat.

Alternatives

1-7980e48d732b6fc85c14b43b94d2aa54.jpg

Te koop Penthouse Costa Del Sol Miraflores € 499.995,-

Price € 499.995,-
Plus d'information
1-7980e48d732b6fc85c14b43b94d2aa54.jpg

Te koop Penthouse Costa Del Sol Casares Playa € 575.000,-

Price € 575.000,-
Plus d'information
1-7980e48d732b6fc85c14b43b94d2aa54.jpg

Te koop Penthouse Costa Del Sol Casares € 475.000,-

Price € 475.000,-
Plus d'information
1-7980e48d732b6fc85c14b43b94d2aa54.jpg

Te koop Penthouse Costa Del Sol Benahavís € 625.000,-

Price € 625.000,-
Plus d'information
Disclaimer | Links
Casadelmar %lng_cookie_notice% %lng_close%
x