Rincón De La Victoria

Te koop Residential Plot Costa Del Sol Rincón De La Victoria € 240.000,-

Ref.no: RSOR5302897
Price: € 240.000,-

1-7980e48d732b6fc85c14b43b94d2aa54.jpg

Te koop Residential Plot Costa Del Sol Rincón De La Victoria € 240.000,-

Living area226m²
Poolno
Gardenyes
Parkingno
Ref.no: RSOR5302897
Price: € 240.000,-

Plus d'information ›››
Te koop Residential Plot Costa Del Sol Rincón De La Victoria € 240.000,-

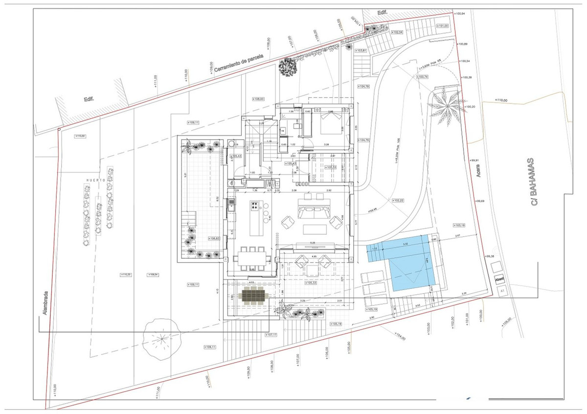
Terrain urbain avec vue sur la mer à Paraíso del Sol – Rincón de la Victoria

Découvrez cette opportunité unique d'investissement ou de construction de la maison de vos rêves dans l'un des quartiers les plus prestigieux de la Costa del Sol. Situé au 123, Calle Bahamas, ce terrain urbain de 626 m² se distingue par son emplacement stratégique, sa vue imprenable sur la mer et un projet déjà réalisé, facilitant ainsi votre construction.

Caractéristiques principales :

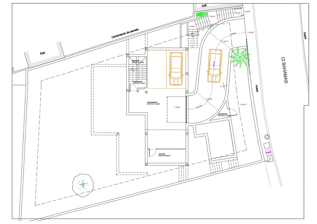
Superficie totale : 626 m² de terrain urbain.

Vues panoramiques sur la mer et le parcours de golf, tirant parti de la pente naturelle douce du terrain.

Permis de construire et projet architectural prêts pour la construction d'une maison individuelle avec sous-sol + rez-de-chaussée + premier étage.

Orientation privilégiée pour une lumière naturelle maximale.

Excellente desserte et commodités à moins de 5 minutes en voiture : supermarchés, écoles, centre de santé, installations sportives et plage.

À seulement 15 minutes de la ville de Málaga par l'autoroute.

Pourquoi ce projet représente-t-il une opportunité exceptionnelle ?
Ce terrain offre non seulement de l'espace et des vues spectaculaires, mais il est également livré avec un projet finalisé et une étude géologique, ce qui représente des économies de temps et d'argent considérables pour commencer la construction de votre maison ou votre investissement en toute tranquillité d'esprit.

Idéal pour :

Construction d'une résidence familiale avec jardin et piscine.

Projet d'investissement dans un quartier bien établi de la Costa del Sol.

Résidence secondaire avec vue sur mer ou résidence permanente.

Contactez-nous dès maintenant pour plus de détails et des conseils personnalisés. Votre projet commence ici.

Alternatives

1-7980e48d732b6fc85c14b43b94d2aa54.jpg

Te koop Residential Plot Costa Del Sol Mijas Golf € 250.000,-

Price € 250.000,-
Plus d'information
1-7980e48d732b6fc85c14b43b94d2aa54.jpg

Te koop Residential Plot Costa Del Sol Estepona € 242.000,-

Price € 242.000,-
Plus d'information
1-7980e48d732b6fc85c14b43b94d2aa54.jpg

Te koop Residential Plot Costa Del Sol La Cala Golf € 242.000,-

Price € 242.000,-
Plus d'information
1-7980e48d732b6fc85c14b43b94d2aa54.jpg

Te koop Residential Plot Costa Del Sol La Cala Golf € 240.000,-

Price € 240.000,-
Plus d'information
Disclaimer | Links
Casadelmar %lng_cookie_notice% %lng_close%
x