Casares Playa

Te koop Residential Plot Costa Del Sol Casares Playa € 1.300.000,-

Ref.no: RSOR5253397
Price: € 1.300.000,-

1-7980e48d732b6fc85c14b43b94d2aa54.jpg

Te koop Residential Plot Costa Del Sol Casares Playa € 1.300.000,-

Poolno
Gardenyes
Parkingno
Situation géographique : Proche du golf, de la mer, du centre-ville, des écoles, de la forêt et du port de plaisance
Orientatie: Zuid
Uitzicht: golf
Hulpprogramma's: elektriciteit, drinkwater, telefoon
Categorie: Investeringen, Off Plan, met bouwvergunning
Ref.no: RSOR5253397
Price: € 1.300.000,-

Plus d'information ›››
Te koop Residential Plot Costa Del Sol Casares Playa € 1.300.000,-

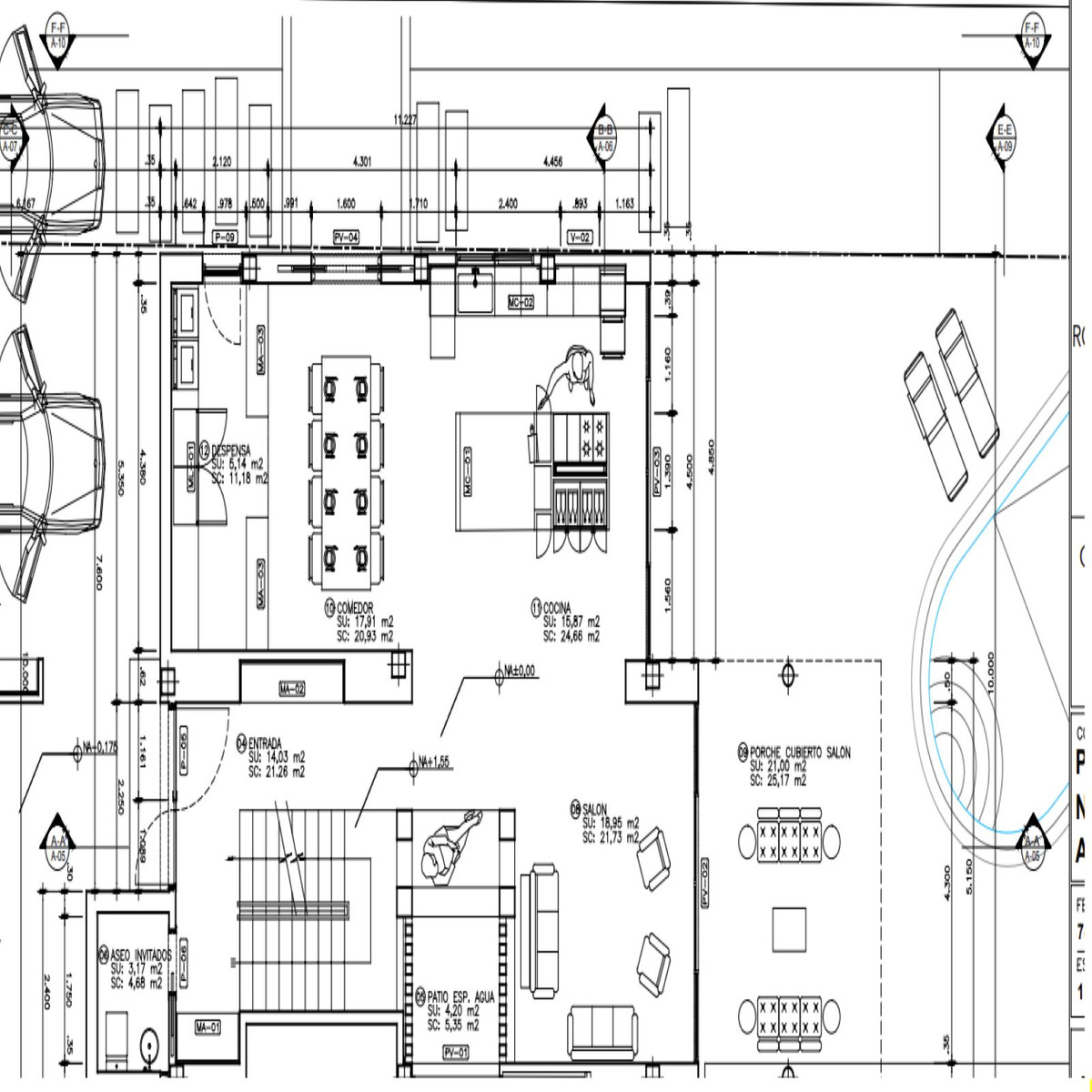
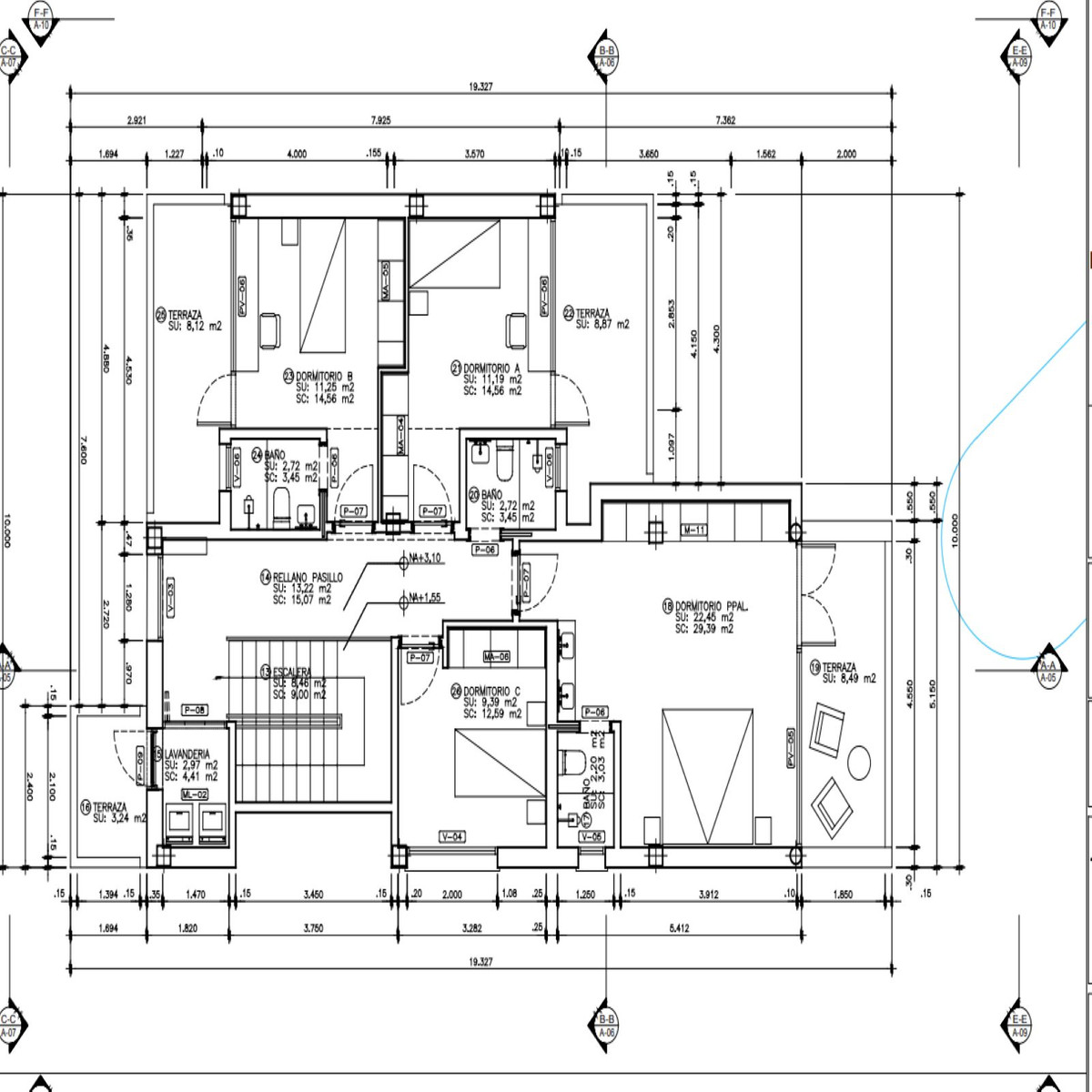
Terrain urbain de 806 m² situé à Casares Costa, l'un des quartiers les plus prisés et en plein essor de la Costa del Sol. Ce terrain offre une surface constructible maximale de 229,45 m² et comprend un projet de maison individuelle de deux étages maximum. La maison se distingue par un design moderne et fonctionnel, avec 4 chambres (dont 3 avec salle de bains privative), de vastes terrasses, un sous-sol d'environ 105 m² pouvant servir de garage ou d'espace de loisirs, et une superbe piscine privée de 28 m². Située dans un quartier résidentiel calme, à proximité de la plage, des golfs et de toutes les commodités, cette propriété est idéale comme résidence principale ou secondaire, et représente également un excellent investissement avec un fort potentiel d'appréciation.

Alternatives

1-7980e48d732b6fc85c14b43b94d2aa54.jpg

Te koop Residential Plot Costa Del Sol New Golden Mile € 1.200.000,-

Price € 1.200.000,-
Plus d'information
1-7980e48d732b6fc85c14b43b94d2aa54.jpg

Te koop Vrijstaande Villa Costa Del Sol Estepona € 1.400.000,-

Price € 1.400.000,-
Plus d'information
1-7980e48d732b6fc85c14b43b94d2aa54.jpg

Te koop Residential Plot Costa Del Sol Mijas € 1.250.000,-

Price € 1.250.000,-
Plus d'information
1-7980e48d732b6fc85c14b43b94d2aa54.jpg

Te koop Residential Plot Costa Del Sol New Golden Mile € 1.200.000,-

Price € 1.200.000,-
Plus d'information
Disclaimer | Links
Casadelmar %lng_cookie_notice% %lng_close%
x